Защита от протечек воды Welrok Base
Квартирные потопы одна из лидирующих причин страховых случаев, особенно в многоэтажках, с пиками в январе и августе.
Причинами аварий часто выступают человеческий фактор, а также неисправность техники, износ водопроводных и коммунальных сетей. Для предотвращения подобных ситуаций служат системы защиты от протечек воды.
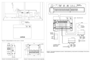
Защита от протечек воды «Welrok Base» предназначена для контроля состояния датчиков протечки воды и выдачи управляющего сигнала на закрытие шаровых кранов, для защиты имущества и ограничение возможного ущерба от протечки в своих и в помещениях нижних этажей.
Выполняемые функции:
— контроль протечки воды в системах водоснабжения.
— автоматическая блокировка всех подключенных кранов при срабатывании одного из датчиков.
— световая и звуковая сигнализация в случае протечки.
— запоминание состояния аварии до устранения её последствий (энергонезависимая память).
— профилактика «закисания» кранов с электроприводом в одном положении каждые 14 дней.
— подача питания на электроприводы кранов только на время изменения их положения и автоматическое отключение питания после этого.
— режим «Влажной» уборки (блокировка датчика на время влажной уборки).
— дистанционное перекрытие воды клавишным выключателем в коридоре при выходе из дома и открытие – по возвращении.
Преимущества системы:
— Адаптер питания 12В, 3А. Безопасное напряжение 12 В на питании электропривода шарового крана. Повышенная надежность и устойчивость к перепадам напряжения.
— Энергонезависимая память.
— Питание электропривода крана только на время изменения положения крана и автоматическое отключение питания после. Постоянный ток (12В), трехпроводная система (открыть, закрыть, общий).
— Дистанционное принудительное перекрытие/ открытие воды с помощью тумблера или клавишного выключателя внешнего контакта в коридоре при выходе из дома и открытие – по возвращении.
— Максимальная эффективность и скорость фиксации протечки за счёт двух пар контактных площадок датчиков, максимально удалённых от центра
— Дополнительная защита от попадания влаги на управляющие элементы датчика благодаря заполнению герметизирующим компаундом свободного пространства внутри корпуса
— Минимизация ложных срабатываний и загрязнения контактных площадок датчика, благодаря выступам ножек на корпусе, которые приподнимают контакты над поверхностью пола
— Надежная и продуманная конструкция электропривода крана с металлическим редуктором и механическими ограничителями
— Возможность ручного управления краном
— Длина провода датчика протечки — 3, 5 или 10 м.
— Гарантия 10 лет.
Характеристики:
— Подключение до 20 датчиков и до 6 кранов
— Время срабатывания крана — 12 секунд, модуля управления — 2 секунды
Шаровый кран:
— Напряжение питания привода — 12 В (9 — 15 В)
— Крутящий момент — 16 Н*м
— Материал корпуса – латунь, нерж. сталь.
— Материал шестеренок электропривода — сталь
— Количество циклов срабатывания — 10 000
— Условное номинальное давление — 40 PN (Bar)
— Рабочие жидкости — вода или любая жидкость, совместимая с PTFE
— Максимальная температура рабочей жидкости — до +120 °С
— Температурный диапазон эксплуатации — 0 — +70 °С
— Модель, диаметр крана – DN15 (1/2″), DN20 (3/4″), DN25 (1″), DN32 (1 3/4″)






